| Author | Message | 
	
		| trihartsfield Samba Member
 
 
 Joined: April 25, 2010
 Posts: 456
 Location: Sheridan, MT
 
   
 | 
			
				|  Posted: Tue Mar 11, 2025 9:13 pm    Post subject: Electrical Question |   |  
				| 
 |  
				| 1982 original diesel that had some kind of bigger VW gas swapped into it. 
 Now trying to sort out some wiring issues.
 
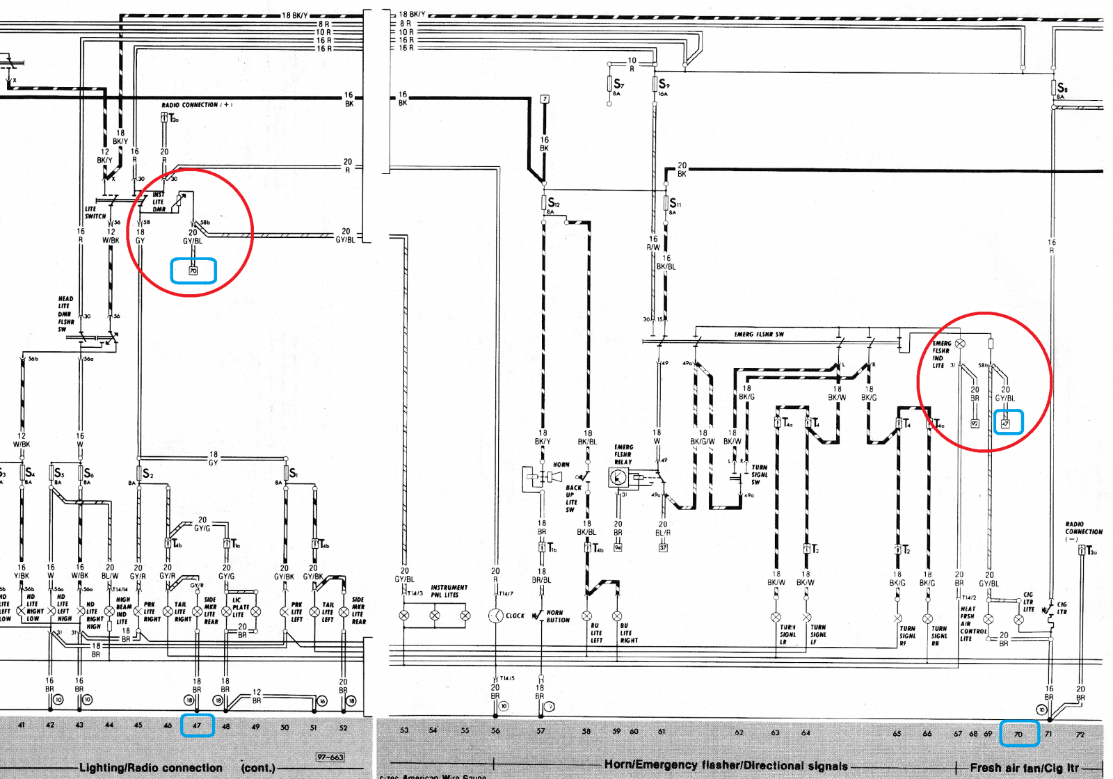
 The light switch/instrument panel light resistor has three Grey/Blue wires. One orginates from the #58 spot and it has a grey wire along with it. The grey wire goes to S2 on the fuse panel
 
 The other two grey/blue wire orginates from the 58b location.
 
 
 In the Bentley it looks like  58 goes through the resistor to 58b. Then it looks like one of those grey/blue wires should go from 58b in the Inst Panel Light Resitor to the T14 connector at the number 3 spot (T14/3). Then there is a grey/blue wires should that goes to track 80.
 
 
 
 
 
 Track 80 goes to the Emergency flasher warning light to 58b location. However there is no wire in the white connector for a wire to go:
 
 
 
 Also the Bentley shows a grey/blue wires to 58b to the rear defog switch however there is no wire in the white connector.
 
 
 
 
 In the Bentley track 80 and 47 are both part of the 58b on the resistors.
 
 The three grey/blue wires that either terminate or initiate at the Inst panel resistor in the first picture is what I have a question on.
 
 How are those wired together with either 58 or 58b track?
 
 Please be patient I am just starting to learn how to read a wire diagram.
 _________________
 1971 Transporter-SOLD
 1982 Westy Will grow up into a TDI
 |  | 
	
		| Back to top |  | 
	
		|  | 
	
		| MarkWard Samba Member
 
  
 Joined: February 09, 2005
 Posts: 18982
 Location: Retired South Florida
 
   
 | 
			
				|  Posted: Wed Mar 12, 2025 5:26 am    Post subject: Re: Electrical Question |   |  
				| 
 |  
				| I think you are doing fine, actually better than many reading the diagrams. I have found they are not 100% accurate. The diagram above does indicate the grey blue wire goes to the cluster bulbs and a side marker light. I haven’t had my coffee yet, but that is a mistake. I believe there are 3 cluster bulbs. It’s also not unusual to find empty slots in molded plug connectors, so don’t get hung up on that. 
 This will bump your thread to the top and there are a couple other members that are more familiar with wiring in Vanagons. Also, look at similar years, sometimes there are corrections in later years.
 |  | 
	
		| Back to top |  | 
	
		|  | 
	
		| crazyvwvanman Samba Member
 
  
 Joined: January 28, 2008
 Posts: 10439
 Location: Orbiting San Diego
 
   
 | 
			
				|  Posted: Wed Mar 12, 2025 6:21 am    Post subject: Re: Electrical Question |   |  
				| 
 |  
				| The diagram with the 3 leds connected together has a labeling problem. The words " side marker light-R" should have an arrow pointing up to the left.
 Those words apply to the led in circuit track 52 and not to any of the 3 connected leds.
 The words wouldn't fit in the empty space they belong in so they were put in a near space instead but the pointing arrow was left out so the result is misleading.
 
 Mark
 |  | 
	
		| Back to top |  | 
	
		|  | 
	
		| trihartsfield Samba Member
 
 
 Joined: April 25, 2010
 Posts: 456
 Location: Sheridan, MT
 
   
 | 
			
				|  Posted: Wed Mar 12, 2025 8:38 am    Post subject: Re: Electrical Question |   |  
				| 
 |  
				| So one of my pictures didn't upload. 
 
 
 Here are the three unconnected wires, all grey/blue, that I am not sure where they should be connected.
 
 It looks like the 58 location should be connected to T14/2 however the other 58b wires I am not sure.
 
 Chris
 _________________
 1971 Transporter-SOLD
 1982 Westy Will grow up into a TDI
 |  | 
	
		| Back to top |  | 
	
		|  | 
	
		| Wildthings Samba Member
 
  
 Joined: March 13, 2005
 Posts: 52620
 
 
   
 | 
			
				|  Posted: Wed Mar 12, 2025 10:31 am    Post subject: Re: Electrical Question |   |  
				| 
 |  
				| It looks like the one wire you have circled is White/Blue and is not part of the 58b circuit. 
 The 58 circuit feeds power to the resister that supplies the 58b circuit but otherwise is independent of it.
 
 None of these have anything to do with the emergency flasher lite, when two wires cross in the diagram they are not connected unless there is a dot at the intersection.
 
 I am not sure what the one little gap in the one drawing means????
 |  | 
	
		| Back to top |  | 
	
		|  | 
	
		| kamzcab86 Samba Moderator
 
  
 Joined: July 26, 2008
 Posts: 8557
 Location: Arizona
 
   
 | 
			
				|  Posted: Wed Mar 12, 2025 10:58 am    Post subject: Re: Electrical Question |   |  
				| 
 |  
				| 
 
	  | trihartsfield wrote: |  
	  | The other two grey/blue wire originates from the 58b location. ...
 Track 80 goes to the Emergency flasher warning light to 58b location. However there is no wire in the white connector for a wire to go:
 ...
 Also the Bentley shows a grey/blue wires to 58b to the rear defog switch however there is no wire in the white connector.
 
 |  
 The gray/blue wires (58b circuit) are for dash bulbs: Instrument cluster lighting, HVAC fan switch/controls lighting, emergency flasher switch light, rear defroster switch light, auto trans console light(s), cig lighter socket light, etc. These are fed via the dimmer switch-side (aka resistor) of the headlight switch.
 
 Do your rear defrost and flasher switches have bulbs in them? If not, perhaps the early vans came that way from the factory, hence no gray/blue wires at those switches?
 _________________
 ~Kamz
   1986 Cabriolet: www.Cabby-Info.com
 
  1990 Vanagon Westfalia: Old Blue's Blog 2016 Golf GTI S
 "Real knowledge is to know the extent of one's ignorance." - 孔子
 |  | 
	
		| Back to top |  | 
	
		|  | 
	
		| trihartsfield Samba Member
 
 
 Joined: April 25, 2010
 Posts: 456
 Location: Sheridan, MT
 
   
 | 
			
				|  Posted: Wed Mar 12, 2025 12:38 pm    Post subject: Re: Electrical Question |   |  
				| 
 |  
				| 
 
	  | kamzcab86 wrote: |  
	  | 
 
	  | trihartsfield wrote: |  
	  | The other two grey/blue wire originates from the 58b location. ...
 Track 80 goes to the Emergency flasher warning light to 58b location. However there is no wire in the white connector for a wire to go:
 ...
 Also the Bentley shows a grey/blue wires to 58b to the rear defog switch however there is no wire in the white connector.
 
 |  
 The gray/blue wires (58b circuit) are for dash bulbs: Instrument cluster lighting, HVAC fan switch/controls lighting, emergency flasher switch light, rear defroster switch light, auto trans console light(s), cig lighter socket light, etc. These are fed via the dimmer switch-side (aka resistor) of the headlight switch.
 
 
 Do your rear defrost and flasher switches have bulbs in them? If not, perhaps the early vans came that way from the factory, hence no gray/blue wires at those switches?
 |  
 I know for sure the emergency switch does and I think the rear defrost does.
 
 So those two wires, grey/blue, do originate from the dimmer that is part of the light switch. They are currently not connected to anything. Where should they be connected? There is a grey/blue wire that is not connected to anything also at the T14/3 position. Is there where they should be connected?
 _________________
 1971 Transporter-SOLD
 1982 Westy Will grow up into a TDI
 |  | 
	
		| Back to top |  | 
	
		|  | 
	
		| trihartsfield Samba Member
 
 
 Joined: April 25, 2010
 Posts: 456
 Location: Sheridan, MT
 
   
 | 
			
				|  Posted: Wed Mar 12, 2025 12:42 pm    Post subject: Re: Electrical Question |   |  
				| 
 |  
				| 
 
	  | Wildthings wrote: |  
	  | It looks like the one wire you have circled is White/Blue and is not part of the 58b circuit. 
 The 58 circuit feeds power to the resister that supplies the 58b circuit but otherwise is independent of it.
 
 None of these have anything to do with the emergency flasher lite, when two wires cross in the diagram they are not connected unless there is a dot at the intersection.
 
 I am not sure what the one little gap in the one drawing means????
 |  
 So I know that the Bentley can be wrong however the way I trace those wires the white/blue (grey/blue) wire that is connected along with the grey wire at position 58 looks like the Bentley indicates it is a grey/blue wire. If it is white, and I agree in the picture it does look white/grey, where is it supposed to be attached?
 
 I am not sure what gap in the drawing you are referencing. Could you add the picture/drawing so I can see what you are talking about? Thanks
 
 Chris
 
 Chris
 _________________
 1971 Transporter-SOLD
 1982 Westy Will grow up into a TDI
 |  | 
	
		| Back to top |  | 
	
		|  | 
	
		| kamzcab86 Samba Moderator
 
  
 Joined: July 26, 2008
 Posts: 8557
 Location: Arizona
 
   
 | 
			
				|  Posted: Wed Mar 12, 2025 3:28 pm    Post subject: Re: Electrical Question |   |  
				| 
 |  
				| 
 
	  | trihartsfield wrote: |  
	  | I know for sure the emergency switch does [have bulbs] and I think the rear defrost does. 
 So those two wires, grey/blue, do originate from the dimmer that is part of the light switch. They are currently not connected to anything. Where should they be connected? There is a grey/blue wire that is not connected to anything also at the T14/3 position. Is there where they should be connected?
 |  
 Completely overlooked that there are gray/blue wires currently disconnected. Yes; those loose gray/blue wires would slide into the switch sockets (corresponding to the bulbs) using locking spade disconnects, as well as into the 14-pin instrument cluster connector.
 _________________
 ~Kamz
   1986 Cabriolet: www.Cabby-Info.com
 
  1990 Vanagon Westfalia: Old Blue's Blog 2016 Golf GTI S
 "Real knowledge is to know the extent of one's ignorance." - 孔子
 |  | 
	
		| Back to top |  | 
	
		|  | 
	
		| crazyvwvanman Samba Member
 
  
 Joined: January 28, 2008
 Posts: 10439
 Location: Orbiting San Diego
 
   
 | 
			
				|  Posted: Wed Mar 12, 2025 4:15 pm    Post subject: Re: Electrical Question |   |  
				| 
 |  
				| The switch pin 58 wire you need is the grey one that turns on the tail lights and running lights when headlight switch is on. It feeds to the fuse panel for the 2 fuses for left side and right side lights.
 
 The switch pin 58b grey/blue wires are for the dimming adjustable back lighting of the various dash stuff.
 
 I don't know what the second wire, white/blue on your pin 58 is meant for, perhaps unused or added by someone to bypass a burned out dimming rheostat on headlight switch in the past.
 
 Be warned that your year has NO FUSE for the 58b wires and also that white/blue is connect to pin 58 before any fuse and should be treated with extra caution for that reason.
 
 Mark
 |  | 
	
		| Back to top |  | 
	
		|  | 
	
		| trihartsfield Samba Member
 
 
 Joined: April 25, 2010
 Posts: 456
 Location: Sheridan, MT
 
   
 | 
			
				|  Posted: Thu Mar 13, 2025 5:44 am    Post subject: Re: Electrical Question |   |  
				| 
 |  
				| Ok so the defrost switch and the instrument light resistor each have a slot that is labeled 58b (the white plug) do not have a wire/connector. Is that where the each of the blue wires should be attached? 
 Or do they both get connected to T14/3 connector?
 
 If they get connected to the individual switch then where does the T14/3 wire get connected.
 
 
 
 
 
 
 
 
 
 _________________
 1971 Transporter-SOLD
 1982 Westy Will grow up into a TDI
 |  | 
	
		| Back to top |  | 
	
		|  | 
	
		| trihartsfield Samba Member
 
 
 Joined: April 25, 2010
 Posts: 456
 Location: Sheridan, MT
 
   
 | 
			
				|  Posted: Thu Mar 13, 2025 5:48 am    Post subject: Re: Electrical Question |   |  
				| 
 |  
				| 
 
	  | crazyvwvanman wrote: |  
	  | The switch pin 58 wire you need is the grey one that turns on the tail lights and running lights when headlight switch is on. It feeds to the fuse panel for the 2 fuses for left side and right side lights.
 
 The switch pin 58b grey/blue wires are for the dimming adjustable back lighting of the various dash stuff.
 
 I don't know what the second wire, white/blue on your pin 58 is meant for, perhaps unused or added by someone to bypass a burned out dimming rheostat on headlight switch in the past.
 
 Be warned that your year has NO FUSE for the 58b wires and also that white/blue is connect to pin 58 before any fuse and should be treated with extra caution for that reason.
 
 Mark
 |  
 Once I get this completely figured out would it be good to either add an inline fuse or send them to a separate fuse panel (which I plan on adding behind the glove box)?
 
 I think that may have been one of the problems. I found several burned wires to include the ground that goes to the emergency flasher switch light ground wire.
 
 Any recommendations would be appreciated.
 
 Chris
 _________________
 1971 Transporter-SOLD
 1982 Westy Will grow up into a TDI
 |  | 
	
		| Back to top |  | 
	
		|  | 
	
		| crazyvwvanman Samba Member
 
  
 Joined: January 28, 2008
 Posts: 10439
 Location: Orbiting San Diego
 
   
 | 
			
				|  Posted: Thu Mar 13, 2025 8:39 am    Post subject: Re: Electrical Question |   |  
				| 
 |  
				| The headlight switch is the power source for the 58b circuit. All of the gray/blue wires fan out from there to various light bulbs in the dash.
 Since there is no fuse it became a known problem in early vans to have melted wires and melted headlight switches if a short to ground occurred on one of the lights.
 
 Starting in 85 Vanagons VW added a fuse to the end of the fuse panel and fed that fuse from headlight switch 58b and then all the wires fan out from the fuse to the various bulbs.
 In 86+ vanagons the fuse was mounted to the top of the later fuse panel.
 
 I hesitate to say much about the 14 pin connector wires without knowing which version of instrument cluster you have.
 It is common for the clusters to get swapped between vans and then the wires to the 14 pin connector may have to be moved to different pins.
 
 Vanagons from 80-83 had a certain basic 14 pin layout and a very major change occurred to the pin layout from 85-91 model years.
 The 84 model year had both layouts but mostly used the earlier one unless a tachometer was fitted.
 There can be a wire or two different between 80-83 vans but nothing dangerous afaik.
 
 Mark
 |  | 
	
		| Back to top |  | 
	
		|  | 
	
		| trihartsfield Samba Member
 
 
 Joined: April 25, 2010
 Posts: 456
 Location: Sheridan, MT
 
   
 | 
			
				|  Posted: Thu Mar 13, 2025 9:23 am    Post subject: Re: Electrical Question |   |  
				| 
 |  
				| 
 
	  | crazyvwvanman wrote: |  
	  | The headlight switch is the power source for the 58b circuit. All of the gray/blue wires fan out from there to various light bulbs in the dash.
 Since there is no fuse it became a known problem in early vans to have melted wires and melted headlight switches if a short to ground occurred on one of the lights.
 
 Starting in 85 Vanagons VW added a fuse to the end of the fuse panel and fed that fuse from headlight switch 58b and then all the wires fan out from the fuse to the various bulbs.
 In 86+ vanagons the fuse was mounted to the top of the later fuse panel.
 
 I hesitate to say much about the 14 pin connector wires without knowing which version of instrument cluster you have.
 It is common for the clusters to get swapped between vans and then the wires to the 14 pin connector may have to be moved to different pins.
 
 Vanagons from 80-83 had a certain basic 14 pin layout and a very major change occurred to the pin layout from 85-91 model years.
 The 84 model year had both layouts but mostly used the earlier one unless a tachometer was fitted.
 There can be a wire or two different between 80-83 vans but nothing dangerous afaik.
 
 Mark
 |  
 That is interesting. My fuse panel does have two added fuses attached to the end/side. I believe there are wires coming off of them but not attached anywhere. I will get a picture tonight.
 
 How would I determine which cluster it has?
 
 As you can probably tell I have the dash out and the cluster in a box.
 
 So if I understand this correctly the best way to wire this would be to send the 58b wires to those extra fuse(s) and then wire from there to the instrument cluster, is that correct?
 
 Chris
 _________________
 1971 Transporter-SOLD
 1982 Westy Will grow up into a TDI
 |  | 
	
		| Back to top |  | 
	
		|  | 
	
		| Wildthings Samba Member
 
  
 Joined: March 13, 2005
 Posts: 52620
 
 
   
 | 
			
				|  Posted: Thu Mar 13, 2025 9:44 am    Post subject: Re: Electrical Question |   |  
				| 
 |  
				| 
 
	  | trihartsfield wrote: |  
	  | 
 
	  | Wildthings wrote: |  
	  | It looks like the one wire you have circled is White/Blue and is not part of the 58b circuit. 
 The 58 circuit feeds power to the resister that supplies the 58b circuit but otherwise is independent of it.
 
 None of these have anything to do with the emergency flasher lite, when two wires cross in the diagram they are not connected unless there is a dot at the intersection.
 
 I am not sure what the one little gap in the one drawing means????
 |  
 So I know that the Bentley can be wrong however the way I trace those wires the white/blue (grey/blue) wire that is connected along with the grey wire at position 58 looks like the Bentley indicates it is a grey/blue wire. If it is white, and I agree in the picture it does look white/grey, where is it supposed to be attached?
 
 I am not sure what gap in the drawing you are referencing. Could you add the picture/drawing so I can see what you are talking about? Thanks
 
 Chris
 
 Chris
 |  
 The 58 and 58b circuits are not the same even though they are fed by the same contacts in the headlight switch. The 58 circuit DOES NOT go through the dimmer resister, while the 58b circuit does.  Unless something is wrong with the marker lights or tail lights don't mess with the wires of the #58 circuit, except to possibly tape off the end of the White/Blue wire if you find it is not being used.  The bulb for the emergency flashers is NOT on the dash illumination circuit, the wires just cross on the schematic without being connected electrically.
 
 The gap shows to the left of the emergency flasher bulb in the schematic you posted, I think someone goofed when they drew up the schematic as the switch to the left of the bulb makes no sense as drawn.
 
 Check out the wiring for a 1985 model in the technical section, page #9, current track #43. Maybe print out the page and use a colored pen to separate the 58 and 58b circuits visually to cut down on confusion. There is a weird little place at the switch above the resister where it looks like the #30 and #58b circuits come together, but they do not:
 
 www.thesamba.com/vw/archives/manuals/1985_86_wiring_vanagon/1985_86_Vanagon_Wiring_Diagrams.pdf
 |  | 
	
		| Back to top |  | 
	
		|  | 
	
		| Vanagon Nut Samba Member
 
  
 Joined: February 08, 2008
 Posts: 10504
 Location: Sunshine Coast B.C.
 
   
 | 
			
				|  Posted: Thu Mar 13, 2025 9:53 am    Post subject: Re: Electrical Question |   |  
				| 
 |  
				| 
 
	  | trihartsfield wrote: |  
	  | Once I get this completely figured out would it be good to either add an inline fuse or send them to a separate fuse panel (which I plan on adding behind the glove box)? 
 I think that may have been one of the problems. I found several burned wires to include the ground that goes to the emergency flasher switch light ground wire.
 
 Any recommendations would be appreciated.
 
 Chris
 |  
 Did (does) your van have a gas heater?
 
 Neil.
 _________________
 1981 Westy DIY 15º ABA
 (VW Gas I4)
 
 1988 Westy DIY 50º ABA
 
 VE7TBN
 |  | 
	
		| Back to top |  | 
	
		|  | 
	
		| crazyvwvanman Samba Member
 
  
 Joined: January 28, 2008
 Posts: 10439
 Location: Orbiting San Diego
 
   
 | 
			
				|  Posted: Thu Mar 13, 2025 10:33 am    Post subject: Re: Electrical Question |   |  
				| 
 |  
				| Post some closeups of the cluster for ID. 
 Yes, adding an inline fuse to the output of headlight switch pin 58b is a good idea.
 Like it shows on the 85 diagram.
 
 (note: 85 diagram is close to what you have except for the T14 pins which may be nearly all wrong numbers if your T14 is still wired for an 82 cluster)
 
 Mark
 
 
 
 
 
	  | trihartsfield wrote: |  
	  | ...... 
 How would I determine which cluster it has?
 
 As you can probably tell I have the dash out and the cluster in a box.
 
 So if I understand this correctly the best way to wire this would be to send the 58b wires to those extra fuse(s) and then wire from there to the instrument cluster, is that correct?
 
 Chris
 |  |  | 
	
		| Back to top |  | 
	
		|  | 
	
		| kamzcab86 Samba Moderator
 
  
 Joined: July 26, 2008
 Posts: 8557
 Location: Arizona
 
   
 | 
			
				|  Posted: Thu Mar 13, 2025 10:50 am    Post subject: Re: Electrical Question |   |  
				| 
 |  
				| 
 
	  | Wildthings wrote: |  
	  | The bulb for the emergency flashers is NOT on the dash illumination circuit, the wires just cross on the schematic without being connected electrically. |  
 The flasher switch bulb?
 
 
 _________________
 ~Kamz
   1986 Cabriolet: www.Cabby-Info.com
 
  1990 Vanagon Westfalia: Old Blue's Blog 2016 Golf GTI S
 "Real knowledge is to know the extent of one's ignorance." - 孔子
 |  | 
	
		| Back to top |  | 
	
		|  | 
	
		| crazyvwvanman Samba Member
 
  
 Joined: January 28, 2008
 Posts: 10439
 Location: Orbiting San Diego
 
   
 | 
			
				|  Posted: Thu Mar 13, 2025 12:00 pm    Post subject: Re: Electrical Question |   |  
				| 
 |  
				| The circled flasher switch wiring shows the bulb IS connected to the dash illumination circuit coming from headlight switch 58b. There is a resistor shown to reduce the bulb voltage, then passing through a "normally closed" contact of the switch and on to the bulb to dimly light it.
 When the flasher switch is turned on that 58b connection is removed and the bulb instead gets direct full power from the flasher circuit to blink it brightly.
 
 Mark
 
 
 
 
 
 
	  | kamzcab86 wrote: |  
	  | 
 
	  | Wildthings wrote: |  
	  | The bulb for the emergency flashers is NOT on the dash illumination circuit, the wires just cross on the schematic without being connected electrically. |  
 The flasher switch bulb?
 
 
 |  |  | 
	
		| Back to top |  | 
	
		|  | 
	
		|  |